Skip to navigation
Skip to main content
572-206-9999
Email Us
Home
About us
Services
Floor plans
Contact us
Home
About us
Services
Floor plans
Contact us
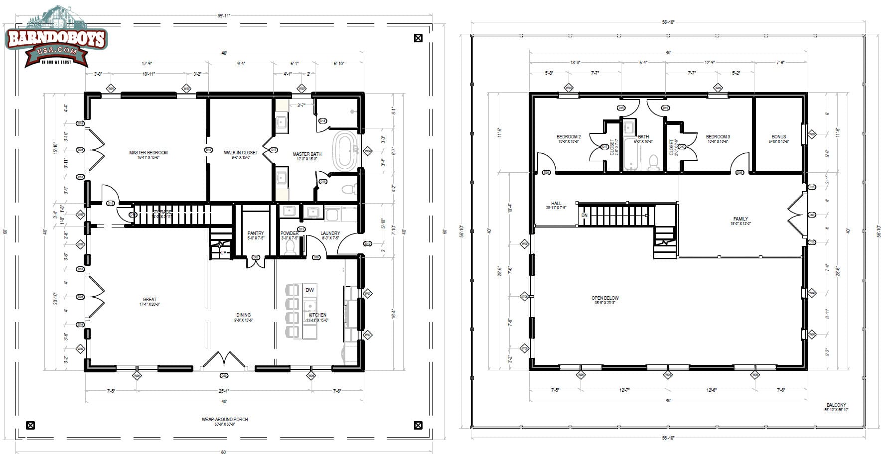
SOUTH FORK
Home
SOUTH FORK
SOUTH FORK
SOUTH FORK
FRONT PORCH
2050 SF
REAR PATIO
LIVING SPACE
2360 SF
GARAGE
BREEZEWAY
OTHERS
1630 SF BALCONY
Newer
THE MADISON
Older
THE GABLE
Related projects
View Large
Living Space
THE MADISON
View Large
Living Space
THE GABLE
View Large
Living Space
THE OAKLEY
View Large
Living Space
THE COZY COTTAGE
View Large
Living Space
MAMAW’S HOUSE
View Large
Living Space
HOME SWEET HOME
Search
Menu
Categories
Set your categories menu in Header builder -> Mobile -> Mobile menu element -> Show/Hide -> Choose menu
Home
About us
Contact us
Compare